Details
Urban Splash, Altrincham, WA14
£195,000 Leasehold
Description
A contemporary TWO BEDROOM APARTMENT at the stunning waterfront Budenberg Development in Altrincham benefiting from eco friendly electric heating & broadband connections with secure underground parking. Entrance & stairs down to a modern lounge with wooden floors & " floor to ceiling windows " onto a South West facing wooden decked balcony. Open plan to fitted kitchen with oven, integrated dishwasher, and freestanding fridge freezer. Utility cupboard with washer dryer. Bathroom with ample fitted storage & shower over bath. Master double bedroom, second single bedroom with large understairs storage cupboard. This is a popular development within walking distance of the Navigation metro link & with good access to major motorway links. The property has an allocated parking space & there is a large communal garden with 100 foot waterfrontage onto the Bridgewater Canal. GREAT FIRST TIME BUYERS PROPERTY/INVESTMENT OPPORTUNITY.
A contemporary TWO BEDROOM APARTMENT at the stunning waterfront Budenberg Development in Altrincham benefiting from eco friendly electric heating & broadband connections with secure underground parking. Entrance & stairs down to a modern lounge with wooden floors & " floor to ceiling windows " onto a South West facing wooden decked balcony. Open plan to fitted kitchen with oven, integrated dishwasher, and freestanding fridge freezer. Utility cupboard with washer dryer. Bathroom with ample fitted storage & shower over bath. Master double bedroom, second single bedroom with large understairs storage cupboard. This is a popular development within walking distance of the Navigation metro link & with good access to major motorway links. The property has an allocated parking space & there is a large communal garden with 100 foot waterfrontage onto the Bridgewater Canal. GREAT FIRST TIME BUYERS PROPERTY/INVESTMENT OPPORTUNITY.
Property Reference HAS-1JPA15WU3JW
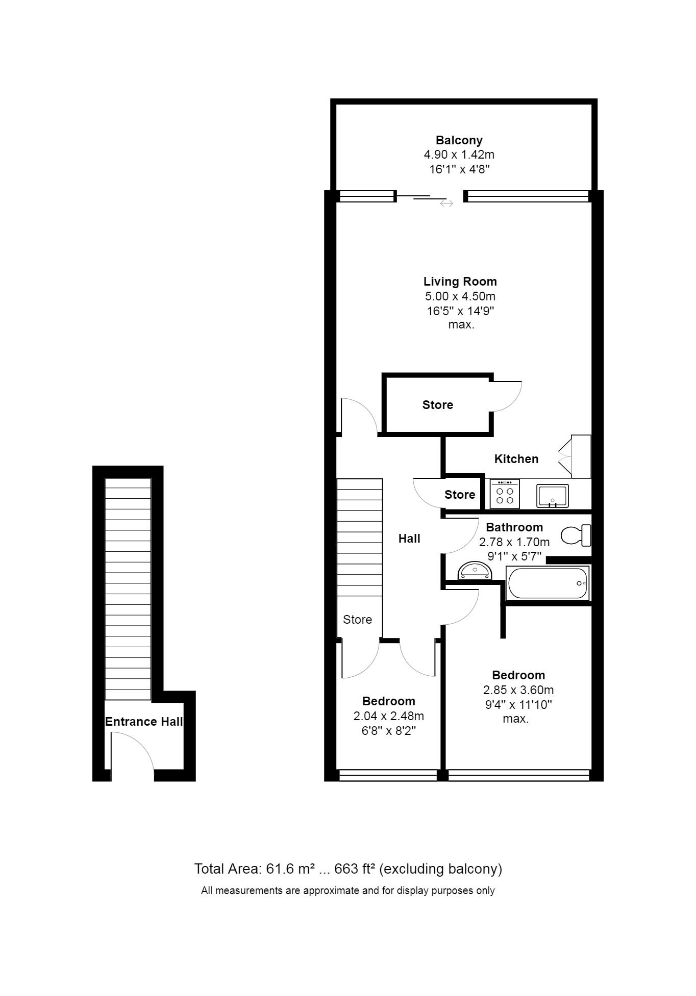
HALLWAY
This modern floor to ceiling front door enters into a super modern apartment with a small hallway to the top of the stairs and space with cloakpegs on the wall together with a large circular wall light. To the bottom of the stairs is further lighting to the walls and a wall mounted radiator, with laminate flooring and storage rooms to the hallway one storing the washing machine.
LIVING ROOM
The large living room is bright and airy and has full floor to ceiling patio doors and windows to the balcony area making this room very inviting and light, with large blinds to the windows and laminate flooring. The living room opens up to the modern kitchen area. There are power points and internet points to this room.
BALCONY
The balcony is a large space, with decked flooring overlooking the old bowling green to the rear and a lovely private area with a good amount of outside space for al fresco dining.
KITCHEN
The kitchen is a great use of space with a range of storage cupboards, freestanding fridge freezer and integrated electric cooker and hob, dishwasher together with a stainless steel sink. A storage unit holding the electric fuse box can also be found here.
MASTER BEDROOM
The master bedroom is carpeted and has two frosted glass windows, with a wall mounted electric radiator and concrete modern ceiling. Side wall lights and power points to the room.
BEDROOM 2
This second bedroom is a large single with a storage under the stairs room great for a walk in wardrobe, carpeted flooring, one large frosted window and a side wall light.
BATHROOM
The bathroom comprises of a bath, overhead shower, hand basin and wc. A wall mounted heated towel rail, storage cupboards behind the WC and under the sink. The flooring is tiled and the ceiling has a range of spotlights.
DISCLAIMER 1
Rooftops Estate Agents give notice that these particulars, whilst believed to be accurate, are set out as a general outline only for guidance and do not constitute any part of an offer or contract - intending purchasers should not rely on them as a statement or representations of fact, but must satisfy themselves by inspection or otherwise as to their accuracy. No person in the employment of Rooftops Estate Agents has the authority to make or give representations or warranty in relation to the property.
DISCLAIMER 2
We are not qualified to confirm that power points, showers, central heating systems, open fires/log burners, gas and electrical equipment are in working order and we would advise prospective purchasers to satisfy themselves on these points prior to exchange of contracts.
Viewing
Please contact us on 0161 929 5152 if you wish to arrange a viewing appointment for this property, or require further information.
Energy Performance Certificate
Click here to view the Energy Efficiency Rating and Environmental Impact Rating for this property.
Disclaimer
Rooftops - SK9 endeavour to maintain accurate depictions of properties in Virtual Tours, Floor Plans and descriptions, however, these are intended only as a guide and purchasers must satisfy themselves by personal inspection.
A contemporary TWO BEDROOM APARTMENT at the stunning waterfront Budenberg Development in Altrincham benefiting from eco friendly electric heating & broadband connections with secure underground parking. Entrance & stairs down to a modern lounge with wooden floors & " floor to ceiling windows " onto a South West facing wooden decked balcony. Open plan to fitted kitchen with oven, integrated dishwasher, and freestanding fridge freezer. Utility cupboard with washer dryer. Bathroom with ample fitted storage & shower over bath. Master double bedroom, second single bedroom with large understairs storage cupboard. This is a popular development within walking distance of the Navigation metro link & with good access to major motorway links. The property has an allocated parking space & there is a large communal garden with 100 foot waterfrontage onto the Bridgewater Canal. GREAT FIRST TIME BUYERS PROPERTY/INVESTMENT OPPORTUNITY.
A contemporary TWO BEDROOM APARTMENT at the stunning waterfront Budenberg Development in Altrincham benefiting from eco friendly electric heating & broadband connections with secure underground parking. Entrance & stairs down to a modern lounge with wooden floors & " floor to ceiling windows " onto a South West facing wooden decked balcony. Open plan to fitted kitchen with oven, integrated dishwasher, and freestanding fridge freezer. Utility cupboard with washer dryer. Bathroom with ample fitted storage & shower over bath. Master double bedroom, second single bedroom with large understairs storage cupboard. This is a popular development within walking distance of the Navigation metro link & with good access to major motorway links. The property has an allocated parking space & there is a large communal garden with 100 foot waterfrontage onto the Bridgewater Canal. GREAT FIRST TIME BUYERS PROPERTY/INVESTMENT OPPORTUNITY.
Property Reference HAS-1JPA15WU3JW
HALLWAY
This modern floor to ceiling front door enters into a super modern apartment with a small hallway to the top of the stairs and space with cloakpegs on the wall together with a large circular wall light. To the bottom of the stairs is further lighting to the walls and a wall mounted radiator, with laminate flooring and storage rooms to the hallway one storing the washing machine.
LIVING ROOM
The large living room is bright and airy and has full floor to ceiling patio doors and windows to the balcony area making this room very inviting and light, with large blinds to the windows and laminate flooring. The living room opens up to the modern kitchen area. There are power points and internet points to this room.
BALCONY
The balcony is a large space, with decked flooring overlooking the old bowling green to the rear and a lovely private area with a good amount of outside space for al fresco dining.
KITCHEN
The kitchen is a great use of space with a range of storage cupboards, freestanding fridge freezer and integrated electric cooker and hob, dishwasher together with a stainless steel sink. A storage unit holding the electric fuse box can also be found here.
MASTER BEDROOM
The master bedroom is carpeted and has two frosted glass windows, with a wall mounted electric radiator and concrete modern ceiling. Side wall lights and power points to the room.
BEDROOM 2
This second bedroom is a large single with a storage under the stairs room great for a walk in wardrobe, carpeted flooring, one large frosted window and a side wall light.
BATHROOM
The bathroom comprises of a bath, overhead shower, hand basin and wc. A wall mounted heated towel rail, storage cupboards behind the WC and under the sink. The flooring is tiled and the ceiling has a range of spotlights.
DISCLAIMER 1
Rooftops Estate Agents give notice that these particulars, whilst believed to be accurate, are set out as a general outline only for guidance and do not constitute any part of an offer or contract - intending purchasers should not rely on them as a statement or representations of fact, but must satisfy themselves by inspection or otherwise as to their accuracy. No person in the employment of Rooftops Estate Agents has the authority to make or give representations or warranty in relation to the property.
DISCLAIMER 2
We are not qualified to confirm that power points, showers, central heating systems, open fires/log burners, gas and electrical equipment are in working order and we would advise prospective purchasers to satisfy themselves on these points prior to exchange of contracts.
Viewing
Please contact us on 0161 929 5152 if you wish to arrange a viewing appointment for this property, or require further information.
Energy Performance Certificate
Click here to view the Energy Efficiency Rating and Environmental Impact Rating for this property.
Disclaimer
Rooftops - SK9 endeavour to maintain accurate depictions of properties in Virtual Tours, Floor Plans and descriptions, however, these are intended only as a guide and purchasers must satisfy themselves by personal inspection.
Features
- FABULOUS LOCATION
- CLOSE TO ALTRINCHAM RETAIL PARK/SHOPS
- LARGE MODERN LIVING AREA
- TWO BEDROOMS
- CLOSE TO CANAL
- GREAT FIRST TIME BUYER/INVESTMENT PROPERTY
Share
Request aValuation
Thinking of selling or letting your property? Contact us today for a free property valuation

