Details
Chelford Road, Macclesfield, SK10
£280,000 Freehold
(Under Offer)
Description
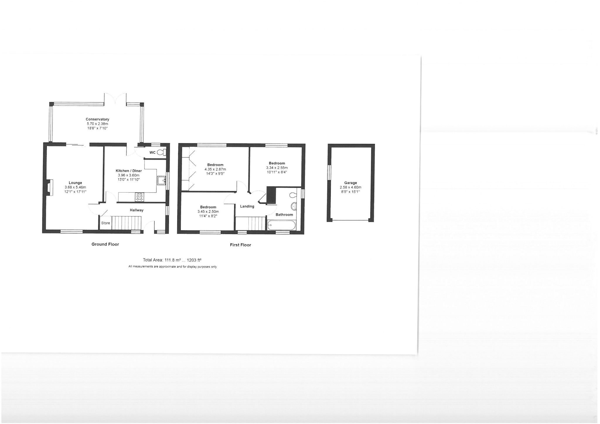
SEMI DETACHED FAMILY HOME WITH LOVELY GARDEN AND LARGE DRIVEWAY. Situated in a prime location of Macclesfield, with easy driving distance to the town centre, mainline train station and close to high regarding local schools, this spacious property is in need of some renovation work but has a huge amount of potential for the discerning buyer to transform into a fabulous family home. Comprising; entrance hall, under stairs storage cupboard, large lounge with wood burner, patio doors to a large conservatory, dining kitchen with double oven, hob, integrated fridge freezer and breakfast bar, downstairs WC. First floor; Master bedroom with a bank of fitted wardrobes, second double bedroom, third small double bedroom. Bathroom with wash hand basin, WC, bath with shower attachment over. Delightful private enclosed rear garden with mature shrubs and trees, raised decked area, garden shed, single garage. Energy Efficiency Rating D. Council Tax Band C. PP.
SEMI DETACHED FAMILY HOME WITH LOVELY GARDEN AND LARGE DRIVEWAY. Situated in a prime location of Macclesfield, with easy driving distance to the town centre, mainline train station and close to high regarding local schools, this spacious property is in need of some renovation work but has a huge amount of potential for the discerning buyer to transform into a fabulous family home. Comprising; entrance hall, under stairs storage cupboard, large lounge with wood burner, patio doors to a large conservatory, dining kitchen with double oven, hob, integrated fridge freezer and breakfast bar, downstairs WC. First floor; Master bedroom with a bank of fitted wardrobes, second double bedroom, third small double bedroom. Bathroom with wash hand basin, WC, bath with shower attachment over. Delightful private enclosed rear garden with mature shrubs and trees, raised decked area, garden shed, single garage. Energy Efficiency Rating D. Council Tax Band C. PP.
Property Reference WIS-1JMN15Q0ZHZ
Entrance Hall
Wooden door, double glazed window to the front elevation, carpet flooring, central ceiling light, radiator, smoke alarm, stairs with wooden banisters to the first floor, under stairs storage cupboard.
Lounge
Double glazed window, fireplace with wood burner, carpet flooring, central ceiling lights, double glazed patio doors, radiator, power points.
Dining Kitchen
Double glazed window and door, tiled flooring, a range of wall and base units with double oven, hob, integrated fridge freezer and breakfast bar, inset spot lights, radiator, power points.
Conservatory
UPVC double glazed conservatory, laminate flooring, double glazed doors to the rear garden.
WC
Double glazed window, low level WC, central heating boiler, radiator, central light.
Master Bedroom
Double glazed window, central ceiling light, carpet flooring, bank of fitted wardrobes, radiator, power points.
Bedroom Two
Double glazed window, central light, carpet flooring, radiator, power points.
Bedroom Three
Double glazed window, central light, carpet flooring, radiator, power points.
Bathroom
Double glazed windows, tiled flooring, central ceiling light, vanity unit housing the wash hand basin, low level WC, bath with hand held shower, radiator.
Outside Space
To the front there is a large driveway with ample parking and garage, to the rear there is an delightful enclosed rear garden with decked area, garden shed and mature shrubs and trees.
Disclaimer
Rooftops Estate Agents give notice that these particulars, whilst believed to be accurate, are set out as a general outline only for guidance and do not constitute any part of an offer or contract - intending purchasers should not rely on them as a statements or representations of fact, but must satisfy themselves by inspection or otherwise as to their accuracy. No person in the employment of Rooftops Estate Agents has the authority to make or give representations or warranty in relation to the property.
Disclaimer.
We are not qualified to confirm that power points, showers, central heating systems, open fires/log burner?s, gas and electrical equipment are in working order and we would advise prospective purchasers to satisfy themselves on these points prior to exchange of contracts.
Viewing
Please contact us on 01625 549404 if you wish to arrange a viewing appointment for this property, or require further information.
Energy Performance Certificate
Click here to view the Energy Efficiency Rating and Environmental Impact Rating for this property.
Disclaimer
Rooftops - SK9 endeavour to maintain accurate depictions of properties in Virtual Tours, Floor Plans and descriptions, however, these are intended only as a guide and purchasers must satisfy themselves by personal inspection.
SEMI DETACHED FAMILY HOME WITH LOVELY GARDEN AND LARGE DRIVEWAY. Situated in a prime location of Macclesfield, with easy driving distance to the town centre, mainline train station and close to high regarding local schools, this spacious property is in need of some renovation work but has a huge amount of potential for the discerning buyer to transform into a fabulous family home. Comprising; entrance hall, under stairs storage cupboard, large lounge with wood burner, patio doors to a large conservatory, dining kitchen with double oven, hob, integrated fridge freezer and breakfast bar, downstairs WC. First floor; Master bedroom with a bank of fitted wardrobes, second double bedroom, third small double bedroom. Bathroom with wash hand basin, WC, bath with shower attachment over. Delightful private enclosed rear garden with mature shrubs and trees, raised decked area, garden shed, single garage. Energy Efficiency Rating D. Council Tax Band C. PP.
SEMI DETACHED FAMILY HOME WITH LOVELY GARDEN AND LARGE DRIVEWAY. Situated in a prime location of Macclesfield, with easy driving distance to the town centre, mainline train station and close to high regarding local schools, this spacious property is in need of some renovation work but has a huge amount of potential for the discerning buyer to transform into a fabulous family home. Comprising; entrance hall, under stairs storage cupboard, large lounge with wood burner, patio doors to a large conservatory, dining kitchen with double oven, hob, integrated fridge freezer and breakfast bar, downstairs WC. First floor; Master bedroom with a bank of fitted wardrobes, second double bedroom, third small double bedroom. Bathroom with wash hand basin, WC, bath with shower attachment over. Delightful private enclosed rear garden with mature shrubs and trees, raised decked area, garden shed, single garage. Energy Efficiency Rating D. Council Tax Band C. PP.
Property Reference WIS-1JMN15Q0ZHZ
Entrance Hall
Wooden door, double glazed window to the front elevation, carpet flooring, central ceiling light, radiator, smoke alarm, stairs with wooden banisters to the first floor, under stairs storage cupboard.
Lounge
Double glazed window, fireplace with wood burner, carpet flooring, central ceiling lights, double glazed patio doors, radiator, power points.
Dining Kitchen
Double glazed window and door, tiled flooring, a range of wall and base units with double oven, hob, integrated fridge freezer and breakfast bar, inset spot lights, radiator, power points.
Conservatory
UPVC double glazed conservatory, laminate flooring, double glazed doors to the rear garden.
WC
Double glazed window, low level WC, central heating boiler, radiator, central light.
Master Bedroom
Double glazed window, central ceiling light, carpet flooring, bank of fitted wardrobes, radiator, power points.
Bedroom Two
Double glazed window, central light, carpet flooring, radiator, power points.
Bedroom Three
Double glazed window, central light, carpet flooring, radiator, power points.
Bathroom
Double glazed windows, tiled flooring, central ceiling light, vanity unit housing the wash hand basin, low level WC, bath with hand held shower, radiator.
Outside Space
To the front there is a large driveway with ample parking and garage, to the rear there is an delightful enclosed rear garden with decked area, garden shed and mature shrubs and trees.
Disclaimer
Rooftops Estate Agents give notice that these particulars, whilst believed to be accurate, are set out as a general outline only for guidance and do not constitute any part of an offer or contract - intending purchasers should not rely on them as a statements or representations of fact, but must satisfy themselves by inspection or otherwise as to their accuracy. No person in the employment of Rooftops Estate Agents has the authority to make or give representations or warranty in relation to the property.
Disclaimer.
We are not qualified to confirm that power points, showers, central heating systems, open fires/log burner?s, gas and electrical equipment are in working order and we would advise prospective purchasers to satisfy themselves on these points prior to exchange of contracts.
Viewing
Please contact us on 01625 549404 if you wish to arrange a viewing appointment for this property, or require further information.
Energy Performance Certificate
Click here to view the Energy Efficiency Rating and Environmental Impact Rating for this property.
Disclaimer
Rooftops - SK9 endeavour to maintain accurate depictions of properties in Virtual Tours, Floor Plans and descriptions, however, these are intended only as a guide and purchasers must satisfy themselves by personal inspection.
Features
- No Chain
- Ideal Investment
- Ample Parking
- Prime Location
- Wood Burner
- Energy Efficiency Rating D
Share
Request aValuation
Thinking of selling or letting your property? Contact us today for a free property valuation

