Details
Moss Chase, Macclesfield, SK11
£345,000 Freehold
Description
An elegant and beautifully presented three-storey townhouse with no onward chain, set within an exclusive and quiet development in Macclesfield. This stylish home enjoys a highly convenient yet peaceful location, providing easy access to Macclesfield town centre, the mainline train station. Newly decorated in soft neutral tones, offering well-balanced contemporary living, and ready to move straight into. Briefly comprising: Ground Floor ? ent hall, study/4th bed, guest WC, and fully fitted kitchen with integrated appliances including a gas range with d/oven, f/freezer, w/dryer and dishwasher. First Floor ? a generous lounge featuring an electric log-effect fire, additional bedroom/home office. Second Floor ? master bedroom with built-in wardrobes, en-suite shower room, a further double bedroom, and family bathroom with shower. Externally, there is a private enclosed garden to the rear, parking. GFCH, EPC rating C, D/Glazing, C/Tax Band D. Freehold
An elegant and beautifully presented three-storey townhouse with no onward chain, set within an exclusive and quiet development in Macclesfield. This stylish home enjoys a highly convenient yet peaceful location, providing easy access to Macclesfield town centre, the mainline train station. Newly decorated in soft neutral tones, offering well-balanced contemporary living, and ready to move straight into. Briefly comprising: Ground Floor ? ent hall, study/4th bed, guest WC, and fully fitted kitchen with integrated appliances including a gas range with d/oven, f/freezer, w/dryer and dishwasher. First Floor ? a generous lounge featuring an electric log-effect fire, additional bedroom/home office. Second Floor ? master bedroom with built-in wardrobes, en-suite shower room, a further double bedroom, and family bathroom with shower. Externally, there is a private enclosed garden to the rear, parking. GFCH, EPC rating C, D/Glazing, C/Tax Band D. Freehold
Property Reference HAS-1HPC13P79V0
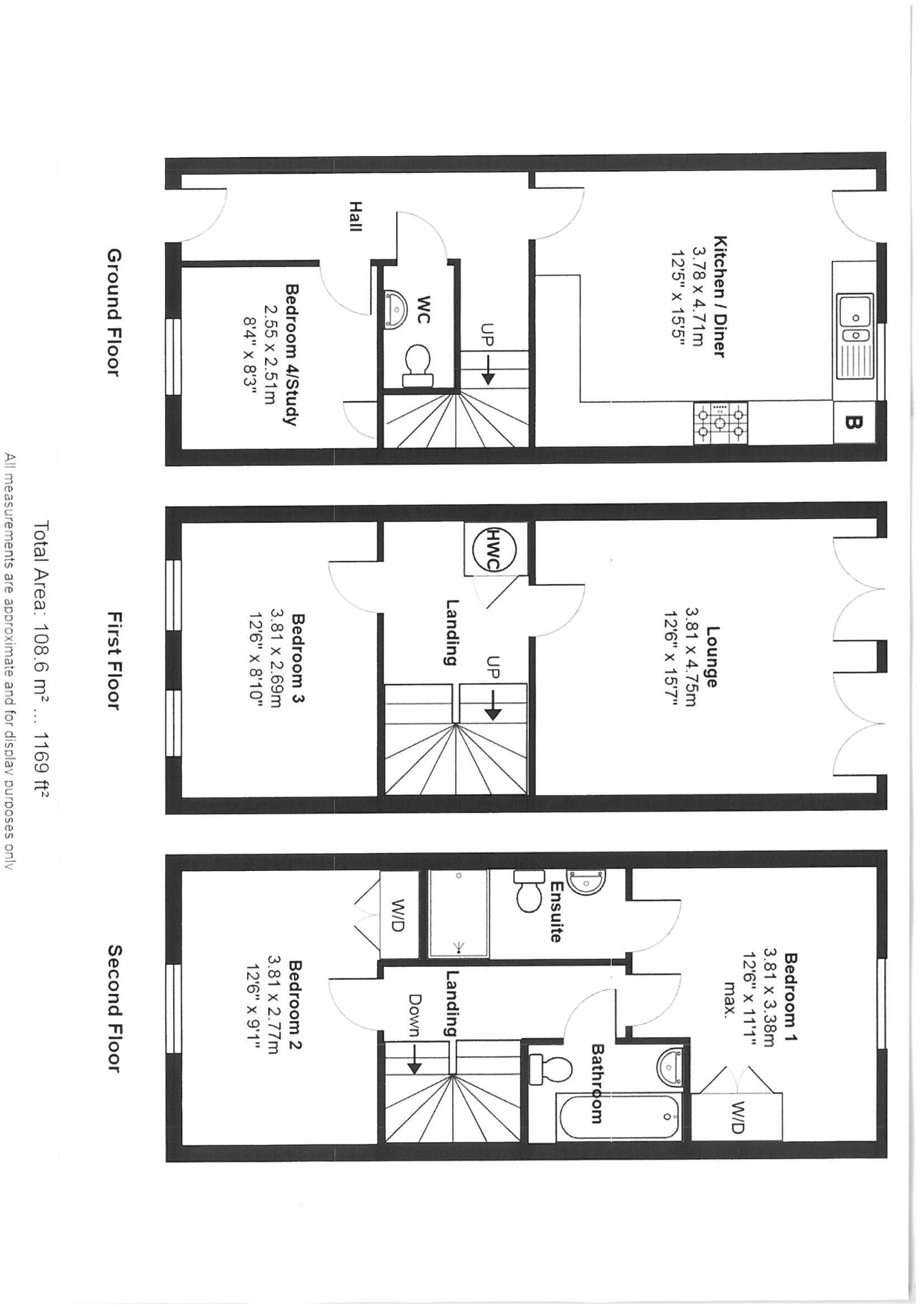
Hallway (Dimensions : 16'39" (5m 86cm) x 3'86" (3m 9cm))
Composite door, nine obscure glass panels, laminate flooring, two central ceiling lights, radiator, power points, alarm sensor.
Bedroom four/study room (Dimensions : 8'90" (4m 72cm) x 8'33" (3m 27cm))
White wooden door with chrome handles, laminate flooring, double glazed window to the front elevation, central ceiling light, storage cupboard, radiator, power points, alarm sensor.
Downstairs WC (Dimensions : 5'43" (2m 61cm) x 3'48X)
White wooden door with chrome handles, tiled flooring, walls painted cream, tiled splash back, low level WC, pedestal hand wash basin, inset spot lights, extractor fan.
Kitchen (Dimensions : 15'45" (5m 71cm) x 12'35" (4m 54cm))
White wooden door with chrome handles, tiled flooring, walls part painted, part tiled, range of wood effect wall and base units, six ring gas range cooker, integrated fridge/freezer, dishwasher and washing machine, double glazed window to the rear elevation, inset spot lights, radiator, power points, composite door with nine glass panels leading to the rear garden.
First floor hallway
Laminate flooring, storage cupboard housing the water heater, central ceiling light, radiator, smoke alarm, power points.
Bedroom one (Dimensions : 12'48" (4m 87cm) x 8'81" (4m 49cm))
White wooden door with chrome handles, laminate flooring, two double glazed windows to the front elevation, central ceiling light, two radiators, power points, TV aerial.
Lounge (Dimensions : 15'57" (6m 1cm) x 12'52" (4m 97cm))
White wooden door with chrome handles, laminate flooring, two French doors with Juliette balconies, wall mounted fire, central ceiling light, radiator, power points.
Second floor landling
Laminate flooring, central ceiling light, smoke alarm, loft hatch.
Bedroom two (Dimensions : 12'48" (4m 87cm) x 9'01" (2m 76cm))
White wooden door with chrome handles, carpet flooring, double glazed window to the front elevation, built in wardrobes, central ceiling light, radiator, power points.
Master bedroom (Dimensions : 12'49" (4m 90cm) x 11'06" (3m 50cm))
White wooden door with chrome handles, laminate flooring, double glazed window to the side elevation, built in wardrobes, central ceiling light, radiator, power points.
En-Suite (Dimensions : 6'65" (3m 47cm) x 4'04" (1m 32cm))
White wooden door with chrome handles, tile flooring, walls part tiled part painted, shower cubicle, low level WC, pedestal hand wash basin, ladder radiator, inset spot lights, extractor fan.
Bathroom (Dimensions : 6'71" (3m 63cm) x 4'73" (3m 7cm))
White wooden door, tiled flooring, walls part tiled part painted, three piece suite comprising bath with shower over, low level WC, pedestal hand wash basing, ladder radiator, inset spot lights, extractor fan.
Rear garden
Enclosed rear garden, mainly laid to lawn.
Disclaimer
Rooftops Estate Agents give notice that these particulars, whilst believed to be accurate, are set out as a general outline only for guidance and do not constitute any part of an offer or contract - intending purchasers should not rely on them as a statements or representations of fact, but must satisfy themselves by inspection or otherwise as to their accuracy. No person in the employment of Rooftops Estate Agents has the authority to make or give representations or warranty in relation to the property.
Disclaimer.
We are not qualified to confirm that power points, showers, central heating systems, open fires/log burner?s, gas and electrical equipment are in working order and we would advise prospective purchasers to satisfy themselves on these points prior to exchange of contracts.
Viewing
Please contact us on 01625 549404 if you wish to arrange a viewing appointment for this property, or require further information.
Energy Performance Certificate
Click here to view the Energy Efficiency Rating and Environmental Impact Rating for this property.
Disclaimer
Rooftops - SK9 endeavour to maintain accurate depictions of properties in Virtual Tours, Floor Plans and descriptions, however, these are intended only as a guide and purchasers must satisfy themselves by personal inspection.
An elegant and beautifully presented three-storey townhouse with no onward chain, set within an exclusive and quiet development in Macclesfield. This stylish home enjoys a highly convenient yet peaceful location, providing easy access to Macclesfield town centre, the mainline train station. Newly decorated in soft neutral tones, offering well-balanced contemporary living, and ready to move straight into. Briefly comprising: Ground Floor ? ent hall, study/4th bed, guest WC, and fully fitted kitchen with integrated appliances including a gas range with d/oven, f/freezer, w/dryer and dishwasher. First Floor ? a generous lounge featuring an electric log-effect fire, additional bedroom/home office. Second Floor ? master bedroom with built-in wardrobes, en-suite shower room, a further double bedroom, and family bathroom with shower. Externally, there is a private enclosed garden to the rear, parking. GFCH, EPC rating C, D/Glazing, C/Tax Band D. Freehold
An elegant and beautifully presented three-storey townhouse with no onward chain, set within an exclusive and quiet development in Macclesfield. This stylish home enjoys a highly convenient yet peaceful location, providing easy access to Macclesfield town centre, the mainline train station. Newly decorated in soft neutral tones, offering well-balanced contemporary living, and ready to move straight into. Briefly comprising: Ground Floor ? ent hall, study/4th bed, guest WC, and fully fitted kitchen with integrated appliances including a gas range with d/oven, f/freezer, w/dryer and dishwasher. First Floor ? a generous lounge featuring an electric log-effect fire, additional bedroom/home office. Second Floor ? master bedroom with built-in wardrobes, en-suite shower room, a further double bedroom, and family bathroom with shower. Externally, there is a private enclosed garden to the rear, parking. GFCH, EPC rating C, D/Glazing, C/Tax Band D. Freehold
Property Reference HAS-1HPC13P79V0
Hallway (Dimensions : 16'39" (5m 86cm) x 3'86" (3m 9cm))
Composite door, nine obscure glass panels, laminate flooring, two central ceiling lights, radiator, power points, alarm sensor.
Bedroom four/study room (Dimensions : 8'90" (4m 72cm) x 8'33" (3m 27cm))
White wooden door with chrome handles, laminate flooring, double glazed window to the front elevation, central ceiling light, storage cupboard, radiator, power points, alarm sensor.
Downstairs WC (Dimensions : 5'43" (2m 61cm) x 3'48X)
White wooden door with chrome handles, tiled flooring, walls painted cream, tiled splash back, low level WC, pedestal hand wash basin, inset spot lights, extractor fan.
Kitchen (Dimensions : 15'45" (5m 71cm) x 12'35" (4m 54cm))
White wooden door with chrome handles, tiled flooring, walls part painted, part tiled, range of wood effect wall and base units, six ring gas range cooker, integrated fridge/freezer, dishwasher and washing machine, double glazed window to the rear elevation, inset spot lights, radiator, power points, composite door with nine glass panels leading to the rear garden.
First floor hallway
Laminate flooring, storage cupboard housing the water heater, central ceiling light, radiator, smoke alarm, power points.
Bedroom one (Dimensions : 12'48" (4m 87cm) x 8'81" (4m 49cm))
White wooden door with chrome handles, laminate flooring, two double glazed windows to the front elevation, central ceiling light, two radiators, power points, TV aerial.
Lounge (Dimensions : 15'57" (6m 1cm) x 12'52" (4m 97cm))
White wooden door with chrome handles, laminate flooring, two French doors with Juliette balconies, wall mounted fire, central ceiling light, radiator, power points.
Second floor landling
Laminate flooring, central ceiling light, smoke alarm, loft hatch.
Bedroom two (Dimensions : 12'48" (4m 87cm) x 9'01" (2m 76cm))
White wooden door with chrome handles, carpet flooring, double glazed window to the front elevation, built in wardrobes, central ceiling light, radiator, power points.
Master bedroom (Dimensions : 12'49" (4m 90cm) x 11'06" (3m 50cm))
White wooden door with chrome handles, laminate flooring, double glazed window to the side elevation, built in wardrobes, central ceiling light, radiator, power points.
En-Suite (Dimensions : 6'65" (3m 47cm) x 4'04" (1m 32cm))
White wooden door with chrome handles, tile flooring, walls part tiled part painted, shower cubicle, low level WC, pedestal hand wash basin, ladder radiator, inset spot lights, extractor fan.
Bathroom (Dimensions : 6'71" (3m 63cm) x 4'73" (3m 7cm))
White wooden door, tiled flooring, walls part tiled part painted, three piece suite comprising bath with shower over, low level WC, pedestal hand wash basing, ladder radiator, inset spot lights, extractor fan.
Rear garden
Enclosed rear garden, mainly laid to lawn.
Disclaimer
Rooftops Estate Agents give notice that these particulars, whilst believed to be accurate, are set out as a general outline only for guidance and do not constitute any part of an offer or contract - intending purchasers should not rely on them as a statements or representations of fact, but must satisfy themselves by inspection or otherwise as to their accuracy. No person in the employment of Rooftops Estate Agents has the authority to make or give representations or warranty in relation to the property.
Disclaimer.
We are not qualified to confirm that power points, showers, central heating systems, open fires/log burner?s, gas and electrical equipment are in working order and we would advise prospective purchasers to satisfy themselves on these points prior to exchange of contracts.
Viewing
Please contact us on 01625 549404 if you wish to arrange a viewing appointment for this property, or require further information.
Energy Performance Certificate
Click here to view the Energy Efficiency Rating and Environmental Impact Rating for this property.
Disclaimer
Rooftops - SK9 endeavour to maintain accurate depictions of properties in Virtual Tours, Floor Plans and descriptions, however, these are intended only as a guide and purchasers must satisfy themselves by personal inspection.
Features
- NO ONWARD CHAIN
- Double glazed
- Four bedrooms
- Enclosed rear garden
- Modern Mews
- Energy Efficiency Rating C
Share
Request aValuation
Thinking of selling or letting your property? Contact us today for a free property valuation

