Details
Barford Drive, Wilmslow, SK9
£425,000 Leasehold
Description
SUPERBLY REFURBISHED TO AN OUTSTANDING STANDARD THROUGHOUT!! This three bedroom semi detached property has been renovated to a high standard throughout and is located on the popular Villas estate in Wilmslow. Fantastic location just a short stroll to the local shops and amenities, easy access to the A34 bypass, motorway links and Manchester International Airport. Comprising; entrance vestibule, bright and airy lounge with double glazed window and large picture window, open plan kitchen diner with integrated appliances to include, oven, hob, fridge freezer and washing machine. First floor; two double bedroom, single bedroom with over stairs storage, family bathroom with shower over the bath. Enclosed rear garden and driveway parking. Energy Efficiency Rating D. Council Tax Band D. PF.
Situated in a highly desirable residential area of Wilmslow, this three-bedroom semi-detached home on Barford Drive has been superbly refurbished to an outstanding standard throughout and is now offered for sale with an asking price of ?445,000. This attractive property provides an excellent opportunity for families, first-time buyers or those looking to upsize in a sought-after Cheshire location.
The accommodation, arranged over two floors, incorporates two versatile reception rooms on the ground floor, offering ample space for both formal entertaining and relaxed family living. A well-proportioned kitchen provides a practical layout for easy entertaining, whilst large windows throughout the property ensure a generous flow of natural light. Upstairs, the home features two comfortable bedrooms and a single bedroom with storage plus a modern family bathroom, ideally suited to meet the needs of today’s growing family.
To the rear of the house, a private garden offers a perfect setting for children’s play or summer entertaining. The front of the property benefits from a small garden and driveway providing off-road parking. The property is positioned within a quiet cul-de-sac, further enhancing its appeal to families seeking a peaceful yet accessible location.
Barford Drive lies within close proximity to Wilmslow town centre, known for its variety of independent shops, cafes, restaurants and supermarkets including Waitrose and Sainsbury’s, both within a five-minute drive. The area is served by highly regarded primary and secondary schools, making it a consistent favourite among families. Local leisure facilities including Wilmslow Leisure Centre and the scenic beauty of The Carrs Park provide plenty of opportunities for recreation.
For commuters, Wilmslow train station is located approximately 1.2 miles away and offers regular direct services to Manchester, Birmingham and London. Manchester Airport is conveniently reachable in under 15 minutes by car, making this property an excellent base for both business and leisure travel. A selection of healthcare services, including GP surgeries and dental practices, are situated nearby, alongside the well-regarded Macclesfield District General Hospital just a short drive away.
This fine property combines comfort, space and location, making it a superb offering in the local market. Early viewing is highly recommended to fully appreciate what this home has to offer.
Property Reference WIS-1JMF15SRG3T
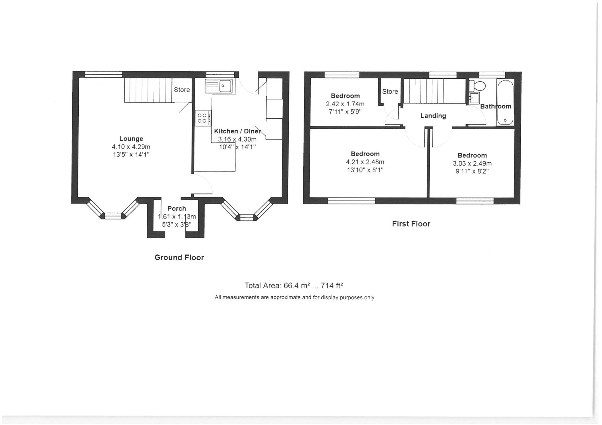
Vestibule (Dimensions : 1.61m (5' 3") x 1.13m (3' 8"))
Composite door with glass panes and chrome door furniture, carpet flooring, central ceiling light, radiator.
Lounge (Dimensions : 4.10m (13' 5") x 4.29m (14' 1"))
Wooden door, light wood herring bone flooring, double glazed bay window to the front elevation, double glazed picture window to the rear elevation, central ceiling light, ladder radiator, under stairs storage, power points.
Kitchen Diner (Dimensions : 3.16m (10' 4") x 4.30m (14' 1"))
Wooden door, double glazed bay window to the front elevation, double glazed window and door to the rear elevation, light wood herring bone flooring, inset spot lights, a range of wall and base units with white work surfaces over, dark chrome sink and mixer tap, integrated induction hob, oven, fridge freezer and washing machine, ladder radiator, power points.
Stairs and Landing
Wooden banisters and balustrade, carpet flooring, double glazed window to the rear elevation, central ceiling light, power points.
Bedroom One (Dimensions : 4.21m (13' 10") x 2.48m (8' 2"))
Wooden door, double glazed window to the front elevation, carpet flooring, central ceiling light, radiator, power points.
Bedroom Two (Dimensions : 3.03m (9' 11") x 2.49m (8' 2"))
Wooden door, double glazed window to the rear elevation, carpet flooring, central ceiling light, radiator, power points.
Bedroom Three (Dimensions : 2.42m (7' 11") x 1.74m (5' 9"))
Wooden door, double glazed window to the rear elevation, carpet flooring, central ceiling light, radiator, over stairs storage, power points.
Bathroom (Dimensions : 5'5" (1m 65cm) x 5'3" (1m 60cm))
Wooden door, double glazed window to the rear elevation, inset spot lights, paneled walls and flooring, bath with shower over, pedestal wash hand basin, low level WC, ladder radiator, extractor fan.
Outside Space
To the front of the property there is a small grassed area and driveway parking for two cars. To the rear there is an enclosed rear garden mainly laid to lawn, small patio area and mature bushes and planting.
Disclaimer
Rooftops Estate Agents give notice that these particulars, whilst believed to be accurate, are set out as a general outline only for guidance and do not constitute any part of an offer or contract - intending purchasers should not rely on them as a statements or representations of fact, but must satisfy themselves by inspection or otherwise as to their accuracy. No person in the employment of Rooftops Estate Agents has the authority to make or give representations or warranty in relation to the property.
Disclaimer.
We are not qualified to confirm that power points, showers, central heating systems, open fires/log burner?s, gas and electrical equipment are in working order and we would advise prospective purchasers to satisfy themselves on these points prior to exchange of contracts.
Viewing
Please contact us on 01625 549404 if you wish to arrange a viewing appointment for this property, or require further information.
Energy Performance Certificate
Click here to view the Energy Efficiency Rating and Environmental Impact Rating for this property.
Disclaimer
Rooftops - SK9 endeavour to maintain accurate depictions of properties in Virtual Tours, Floor Plans and descriptions, however, these are intended only as a guide and purchasers must satisfy themselves by personal inspection.
SUPERBLY REFURBISHED TO AN OUTSTANDING STANDARD THROUGHOUT!! This three bedroom semi detached property has been renovated to a high standard throughout and is located on the popular Villas estate in Wilmslow. Fantastic location just a short stroll to the local shops and amenities, easy access to the A34 bypass, motorway links and Manchester International Airport. Comprising; entrance vestibule, bright and airy lounge with double glazed window and large picture window, open plan kitchen diner with integrated appliances to include, oven, hob, fridge freezer and washing machine. First floor; two double bedroom, single bedroom with over stairs storage, family bathroom with shower over the bath. Enclosed rear garden and driveway parking. Energy Efficiency Rating D. Council Tax Band D. PF.
Situated in a highly desirable residential area of Wilmslow, this three-bedroom semi-detached home on Barford Drive has been superbly refurbished to an outstanding standard throughout and is now offered for sale with an asking price of ?445,000. This attractive property provides an excellent opportunity for families, first-time buyers or those looking to upsize in a sought-after Cheshire location.
The accommodation, arranged over two floors, incorporates two versatile reception rooms on the ground floor, offering ample space for both formal entertaining and relaxed family living. A well-proportioned kitchen provides a practical layout for easy entertaining, whilst large windows throughout the property ensure a generous flow of natural light. Upstairs, the home features two comfortable bedrooms and a single bedroom with storage plus a modern family bathroom, ideally suited to meet the needs of today’s growing family.
To the rear of the house, a private garden offers a perfect setting for children’s play or summer entertaining. The front of the property benefits from a small garden and driveway providing off-road parking. The property is positioned within a quiet cul-de-sac, further enhancing its appeal to families seeking a peaceful yet accessible location.
Barford Drive lies within close proximity to Wilmslow town centre, known for its variety of independent shops, cafes, restaurants and supermarkets including Waitrose and Sainsbury’s, both within a five-minute drive. The area is served by highly regarded primary and secondary schools, making it a consistent favourite among families. Local leisure facilities including Wilmslow Leisure Centre and the scenic beauty of The Carrs Park provide plenty of opportunities for recreation.
For commuters, Wilmslow train station is located approximately 1.2 miles away and offers regular direct services to Manchester, Birmingham and London. Manchester Airport is conveniently reachable in under 15 minutes by car, making this property an excellent base for both business and leisure travel. A selection of healthcare services, including GP surgeries and dental practices, are situated nearby, alongside the well-regarded Macclesfield District General Hospital just a short drive away.
This fine property combines comfort, space and location, making it a superb offering in the local market. Early viewing is highly recommended to fully appreciate what this home has to offer.
Property Reference WIS-1JMF15SRG3T
Vestibule (Dimensions : 1.61m (5' 3") x 1.13m (3' 8"))
Composite door with glass panes and chrome door furniture, carpet flooring, central ceiling light, radiator.
Lounge (Dimensions : 4.10m (13' 5") x 4.29m (14' 1"))
Wooden door, light wood herring bone flooring, double glazed bay window to the front elevation, double glazed picture window to the rear elevation, central ceiling light, ladder radiator, under stairs storage, power points.
Kitchen Diner (Dimensions : 3.16m (10' 4") x 4.30m (14' 1"))
Wooden door, double glazed bay window to the front elevation, double glazed window and door to the rear elevation, light wood herring bone flooring, inset spot lights, a range of wall and base units with white work surfaces over, dark chrome sink and mixer tap, integrated induction hob, oven, fridge freezer and washing machine, ladder radiator, power points.
Stairs and Landing
Wooden banisters and balustrade, carpet flooring, double glazed window to the rear elevation, central ceiling light, power points.
Bedroom One (Dimensions : 4.21m (13' 10") x 2.48m (8' 2"))
Wooden door, double glazed window to the front elevation, carpet flooring, central ceiling light, radiator, power points.
Bedroom Two (Dimensions : 3.03m (9' 11") x 2.49m (8' 2"))
Wooden door, double glazed window to the rear elevation, carpet flooring, central ceiling light, radiator, power points.
Bedroom Three (Dimensions : 2.42m (7' 11") x 1.74m (5' 9"))
Wooden door, double glazed window to the rear elevation, carpet flooring, central ceiling light, radiator, over stairs storage, power points.
Bathroom (Dimensions : 5'5" (1m 65cm) x 5'3" (1m 60cm))
Wooden door, double glazed window to the rear elevation, inset spot lights, paneled walls and flooring, bath with shower over, pedestal wash hand basin, low level WC, ladder radiator, extractor fan.
Outside Space
To the front of the property there is a small grassed area and driveway parking for two cars. To the rear there is an enclosed rear garden mainly laid to lawn, small patio area and mature bushes and planting.
Disclaimer
Rooftops Estate Agents give notice that these particulars, whilst believed to be accurate, are set out as a general outline only for guidance and do not constitute any part of an offer or contract - intending purchasers should not rely on them as a statements or representations of fact, but must satisfy themselves by inspection or otherwise as to their accuracy. No person in the employment of Rooftops Estate Agents has the authority to make or give representations or warranty in relation to the property.
Disclaimer.
We are not qualified to confirm that power points, showers, central heating systems, open fires/log burner?s, gas and electrical equipment are in working order and we would advise prospective purchasers to satisfy themselves on these points prior to exchange of contracts.
Viewing
Please contact us on 01625 549404 if you wish to arrange a viewing appointment for this property, or require further information.
Energy Performance Certificate
Click here to view the Energy Efficiency Rating and Environmental Impact Rating for this property.
Disclaimer
Rooftops - SK9 endeavour to maintain accurate depictions of properties in Virtual Tours, Floor Plans and descriptions, however, these are intended only as a guide and purchasers must satisfy themselves by personal inspection.
Features
- *** NO Chain ***
- Newly Renovated
- Close to local amenities
- Driveway parking
- Cul de Sac position
- Energy Efficiency Rating D
Share
Request aValuation
Thinking of selling or letting your property? Contact us today for a free property valuation

