Details
Park Road, Wilmslow, SK9
£325,000 Freehold
(Under Offer)
Description
CONVENIENTLY LOCATED AND NO CHAIN!! Easy access to Wilmslow town centre, the main line train station, schools, local amenities and the Carrs Park. This pretty period terrace house property has a double storey extension and is considerably larger than other houses on this side of the street, with a private enclosed rear garden and is located in a quiet, popular area of Wilmslow, with country walks to Styal County park and back and conveniently located for Manchester International Airport. Comprising; porch entrance to lounge with an original brick fireplace, dining kitchen with gas hob, electric oven, fridge freezer and washer dryer. First floor; large and airy double bedroom, mid sized second bedroom, family bathroom with a separate shower cubicle. Enclosed patio garden. Energy Efficiency Rating D. Council Tax Band D. PF.
A charming 2-bedroom cottage nestled on the desirable Park Road in the town of Wilmslow is up for sale with an asking price of ?325,000 in a highly sought-after location. The house showcases authentic features that reflect the essence of its cottage-style aesthetics and holds the potential to become an incredibly warm and inviting home. There is also a double storey extension to the rear.
This delightful property spans over two floors, with the entrance on the ground floor. Internal viewing will reveal a well-structured and smartly configured floor plan that allows the home to be flooded with ample natural light. A quintessential atmosphere resonates through the property, with charming character features sprinkled throughout.
The property's ground floor offers generously proportioned living spaces perfect for relaxation and entertainment. There are two reception rooms, each with its distinctive character and purpose. One may be ideally used as a formal living or dining area, and the other as a cosy family room. With an efficient kitchen dining room to the rear of the property.
Upstairs, the cottage houses two comfortable bedrooms, exhibiting a calming atmosphere well-suited for rest and retreat. The overall feel of the house is a harmonious blend of traditional charm and modern living arrangements.
The appeal of this house is evident from the exterior right through to the interior details. With a superb location in Wilmslow, prospective buyers can look forward to enjoying a friendly community atmosphere and quick access to local amenities and services. This is not just a house on offer, but a lifestyle, a community, and an opportunity to make a wise investment.
In conclusion, this quite enchanting two-bedroom cottage presents a unique proposition for those discerning buyers who are searching for a character property and a quintessential cottage-style feel, nestled in the heart of a coveted location. The asking price represents excellent value for such a remarkable property in Wilmslow. Consider it an opportunity for an enchanting life and a worthy investment. Energy Efficiency Rating D. Council Tax Band D.
Property Reference WIS-1JR5150XJVW
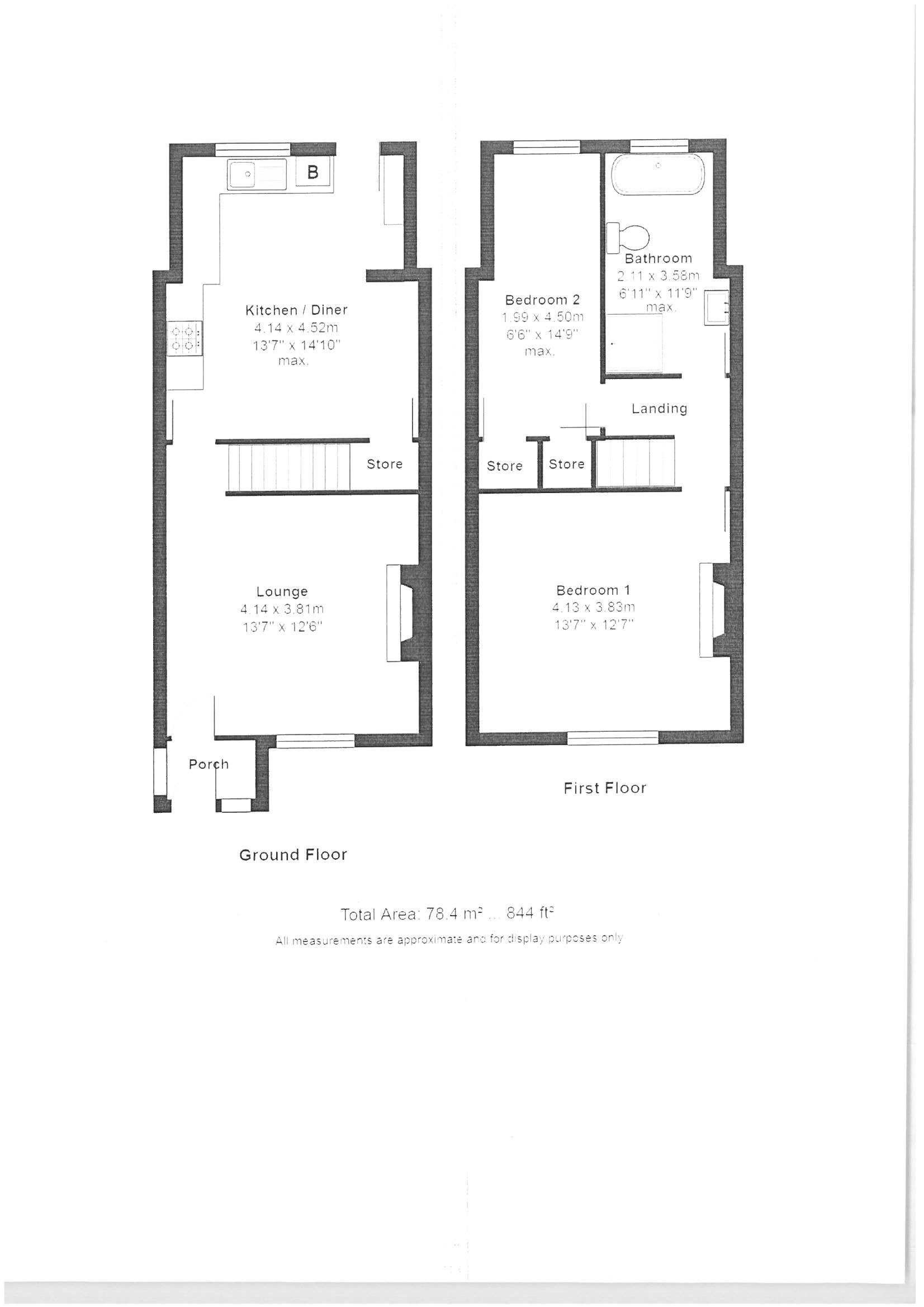
Entrance porch
Wooden door painted black, original brick walls, two windows to the front and side elevations, tiled flooring, central ceiling light.
Lounge (Dimensions : 13'7" (4m 14cm) x 12'6" (3m 81cm))
Wooden door painted black, double glazed uPVC window to the front elevation, original brick fireplace and surround, central ceiling light and wall lights, wooden flooring, radiator, alarm panel and sensor, power points, TV aerial point.
Kitchen diner (Dimensions : 14'10" (4m 52cm) x 13'7" (4m 14cm))
Wooden door painted white, double glazed uPVC window to the rear elevation, range of wall and base unites with marble effect work surfaces over, chrome sink and drainer, gas hob, electric oven, dishwasher, fridge/freezer, inset spot lights and a ceiling light, walls part tiled part paint, tiled flooring, radiator, power points.
Storage cupboard
Wooden door painted white, central ceiling light, washing machine.
Stairs and Landing
Wooden banisters and balustrades, carpet flooring, central ceiling light, loft hatch.
Bedroom one (Dimensions : 13'7" (4m 14cm) x 12'7" (3m 83cm))
Wooden door painted white, double glazed uPVC window to the front elevation, central ceiling light, wooden flooring, ornamental fire surround, radiator, power points, TV aerial point.
Bedroom two (Dimensions : 14'9" (4m 49cm) x 6'6" (1m 98cm))
Wooden door painted white, double glazed uPVC window to the rear elevation, inset spot lights, wooden floor, radiator, power points, built in storage.
Bathroom (Dimensions : 11'9" (3m 58cm) x 6'6" (1m 98cm))
Wooden door painted white, double glazed uPVC window to the rear elevation, two ceiling light, wooden flooring, walls part tiled and part paint, freestanding bath with hand shower, corner shower cubicle, pedestal wash hand basin, low level WC, radiator, extractor fan.
Outside space
To the front there is a paved patio area enclosed with a picket fence to three sides, to the rear there is an enclosed patio garden
Disclaimer
Rooftops Estate Agents give notice that these particulars, whilst believed to be accurate, are set out as a general outline only for guidance and do not constitute any part of an offer or contract - intending purchasers should not rely on them as a statement or representations of fact, but must satisfy themselves by inspection or otherwise as to their accuracy. No person in the employment of Rooftops Estate Agents has the authority or warranty in relation to the property.
Disclaimer.
We are not qualified to confirm that power points, showers, central heating systems, open fires/log burners, gas and electrical equipment are in working order and we would advise prospective purchasers to satisfy themselves on these points prior to exchange of contracts.
Viewing
Please contact us on 01625 549404 if you wish to arrange a viewing appointment for this property, or require further information.
Energy Performance Certificate
Click here to view the Energy Efficiency Rating and Environmental Impact Rating for this property.
Disclaimer
Rooftops - SK9 endeavour to maintain accurate depictions of properties in Virtual Tours, Floor Plans and descriptions, however, these are intended only as a guide and purchasers must satisfy themselves by personal inspection.
CONVENIENTLY LOCATED AND NO CHAIN!! Easy access to Wilmslow town centre, the main line train station, schools, local amenities and the Carrs Park. This pretty period terrace house property has a double storey extension and is considerably larger than other houses on this side of the street, with a private enclosed rear garden and is located in a quiet, popular area of Wilmslow, with country walks to Styal County park and back and conveniently located for Manchester International Airport. Comprising; porch entrance to lounge with an original brick fireplace, dining kitchen with gas hob, electric oven, fridge freezer and washer dryer. First floor; large and airy double bedroom, mid sized second bedroom, family bathroom with a separate shower cubicle. Enclosed patio garden. Energy Efficiency Rating D. Council Tax Band D. PF.
A charming 2-bedroom cottage nestled on the desirable Park Road in the town of Wilmslow is up for sale with an asking price of ?325,000 in a highly sought-after location. The house showcases authentic features that reflect the essence of its cottage-style aesthetics and holds the potential to become an incredibly warm and inviting home. There is also a double storey extension to the rear.
This delightful property spans over two floors, with the entrance on the ground floor. Internal viewing will reveal a well-structured and smartly configured floor plan that allows the home to be flooded with ample natural light. A quintessential atmosphere resonates through the property, with charming character features sprinkled throughout.
The property's ground floor offers generously proportioned living spaces perfect for relaxation and entertainment. There are two reception rooms, each with its distinctive character and purpose. One may be ideally used as a formal living or dining area, and the other as a cosy family room. With an efficient kitchen dining room to the rear of the property.
Upstairs, the cottage houses two comfortable bedrooms, exhibiting a calming atmosphere well-suited for rest and retreat. The overall feel of the house is a harmonious blend of traditional charm and modern living arrangements.
The appeal of this house is evident from the exterior right through to the interior details. With a superb location in Wilmslow, prospective buyers can look forward to enjoying a friendly community atmosphere and quick access to local amenities and services. This is not just a house on offer, but a lifestyle, a community, and an opportunity to make a wise investment.
In conclusion, this quite enchanting two-bedroom cottage presents a unique proposition for those discerning buyers who are searching for a character property and a quintessential cottage-style feel, nestled in the heart of a coveted location. The asking price represents excellent value for such a remarkable property in Wilmslow. Consider it an opportunity for an enchanting life and a worthy investment. Energy Efficiency Rating D. Council Tax Band D.
Property Reference WIS-1JR5150XJVW
Entrance porch
Wooden door painted black, original brick walls, two windows to the front and side elevations, tiled flooring, central ceiling light.
Lounge (Dimensions : 13'7" (4m 14cm) x 12'6" (3m 81cm))
Wooden door painted black, double glazed uPVC window to the front elevation, original brick fireplace and surround, central ceiling light and wall lights, wooden flooring, radiator, alarm panel and sensor, power points, TV aerial point.
Kitchen diner (Dimensions : 14'10" (4m 52cm) x 13'7" (4m 14cm))
Wooden door painted white, double glazed uPVC window to the rear elevation, range of wall and base unites with marble effect work surfaces over, chrome sink and drainer, gas hob, electric oven, dishwasher, fridge/freezer, inset spot lights and a ceiling light, walls part tiled part paint, tiled flooring, radiator, power points.
Storage cupboard
Wooden door painted white, central ceiling light, washing machine.
Stairs and Landing
Wooden banisters and balustrades, carpet flooring, central ceiling light, loft hatch.
Bedroom one (Dimensions : 13'7" (4m 14cm) x 12'7" (3m 83cm))
Wooden door painted white, double glazed uPVC window to the front elevation, central ceiling light, wooden flooring, ornamental fire surround, radiator, power points, TV aerial point.
Bedroom two (Dimensions : 14'9" (4m 49cm) x 6'6" (1m 98cm))
Wooden door painted white, double glazed uPVC window to the rear elevation, inset spot lights, wooden floor, radiator, power points, built in storage.
Bathroom (Dimensions : 11'9" (3m 58cm) x 6'6" (1m 98cm))
Wooden door painted white, double glazed uPVC window to the rear elevation, two ceiling light, wooden flooring, walls part tiled and part paint, freestanding bath with hand shower, corner shower cubicle, pedestal wash hand basin, low level WC, radiator, extractor fan.
Outside space
To the front there is a paved patio area enclosed with a picket fence to three sides, to the rear there is an enclosed patio garden
Disclaimer
Rooftops Estate Agents give notice that these particulars, whilst believed to be accurate, are set out as a general outline only for guidance and do not constitute any part of an offer or contract - intending purchasers should not rely on them as a statement or representations of fact, but must satisfy themselves by inspection or otherwise as to their accuracy. No person in the employment of Rooftops Estate Agents has the authority or warranty in relation to the property.
Disclaimer.
We are not qualified to confirm that power points, showers, central heating systems, open fires/log burners, gas and electrical equipment are in working order and we would advise prospective purchasers to satisfy themselves on these points prior to exchange of contracts.
Viewing
Please contact us on 01625 549404 if you wish to arrange a viewing appointment for this property, or require further information.
Energy Performance Certificate
Click here to view the Energy Efficiency Rating and Environmental Impact Rating for this property.
Disclaimer
Rooftops - SK9 endeavour to maintain accurate depictions of properties in Virtual Tours, Floor Plans and descriptions, however, these are intended only as a guide and purchasers must satisfy themselves by personal inspection.
Features
- *** NO CHAIN ***
- Sought after location
- Period cottage
- Extended at the rear
- Private garden
- Energy Efficiency Rating D
Share
Request aValuation
Thinking of selling or letting your property? Contact us today for a free property valuation

